B.03.01—前雨刮
0赞
发表于 6/17/2015 2:38:31 PM
阅读(3516)
(2014-12-31 发表于本人QQ空间)本来而言A部分的内容才刚开始不久,现就夹杂着写B部分不是什么好事,所以前两天决定暂时不写了,但是近日处理的一些bug激起了我的兴趣和思考。
说来对雨刮的感情还是比较深的,刚开始工作就有接触,即便后来有些间断,然直至目前仍偶有联系,只不过已渐次变少乃至没有,所以这关系是脆弱的。原想及不久后可能不再涉足,便想去总结一下;而提笔却又满心惶恐,生怕将熟悉的事物写出满满的陌生来,就如原本熟识的朋友几经交流却突变陌路,损失不可估量。反过来想这毕竟非人,凡计划中的事尽晚不如尽早,即起意、便着手。
前雨刮的介绍准备挑战一下功能、原理、设计同步开展的思路,会有一些混乱,但尽量避免。
虽然国家只有推荐标准,但我所见的前雨刮电机都是2个档位,即高速档和低速档。两个档位的刮刷速率分别在60~65rpm、40~45rpm(额定负载下)。
入门级功能
实车上往往至少会有高速(Hi)、低速(Lo)、间歇(Int)三种选择,而间歇档又可分为多个小档位,每个档位的间歇时间又是不同的(如1、3、5、7秒或2、4、6、8秒等)。加上OFF档(停止不动)和MIST档(喷洗涤液时雨刮一块动),就可有五个大的档位。这是一般车型的入门配置。对雨刮电机来说,它相对普通的永磁直流电机的差异在于有三个电刷,其中一个接地、一个高速电、一个低速电;而对于所有档位中,仅高速档是对电机的“高速电”供电的,其他任意档位均是对“低速电”碳刷供电,下文中要提到的功能也如此。
技术原理简介
对于系统的设计者而言,入门时需了解的是雨刮电机的类型、电机复位原理、系统电路如何搭配以使电机正确复位(复位的定义:当用户在非OFF档将雨刮开关打至OFF时,雨刮应自动刮到风窗玻璃下侧然后停止,而非立即断电停在玻璃中央;该位置其实为一个区间,该区间对应到电机内容为一个约30~40度的角度,此范围在下文中我们称作“复位区间”)。电机类型可分为4pin与5pin两种,后者的复位可通过外部电路直接实现,前者的复位必须通过模块控制来实现。
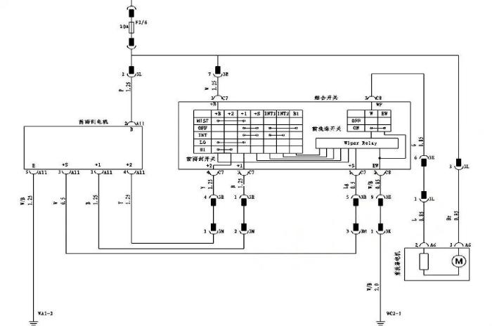
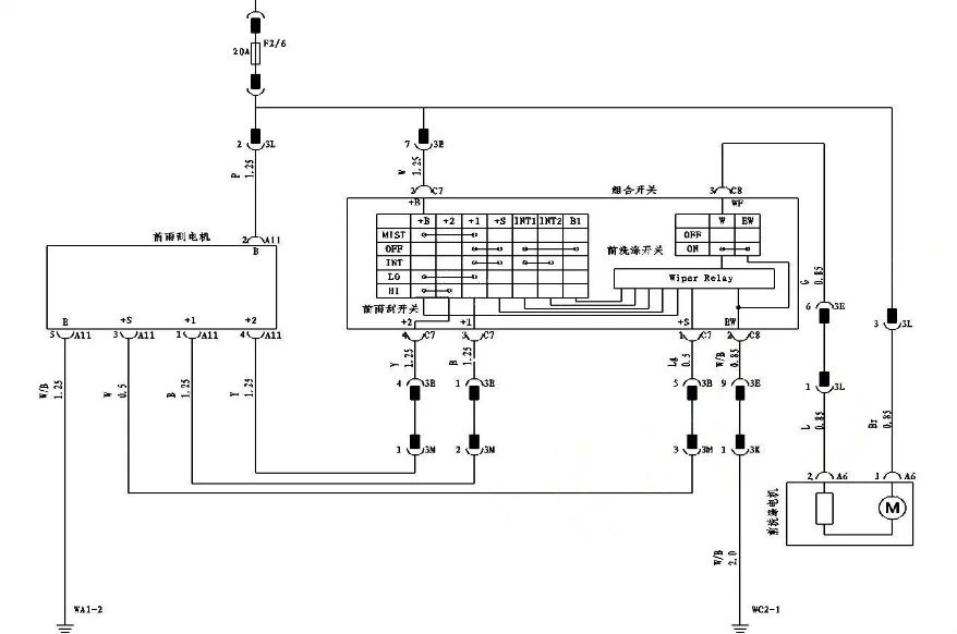
5PIN电机。下图为某5pin电机的典型控制电路示意(该图来自网络,看绘图风格应属BYD)。它的复位原理简述为:Pin 2&5为常电和地、Pin 1&4分别是高低速供电、Pin 3为复位专用,其原理为如在非复位区间断电,则Pin 3保持与Pin 2导通直到电机抵达复位区间(此时刮片到了风窗玻璃下部),到达复位区间后,Pin 3便不再和Pin 2导通,而与Pin 5导通,让电机进行能耗制动。对于下图中的内容由于电机内部的示意省略了且Wiper Relay也是黑盒故可能不好理解,建议参考后面的图来理解。

上图中为5PIN电机,对于42处的示意为间歇功能(也可叫它间歇继电器),看上去此处的间歇档只有一个间歇时间(因为只有一个档)。对于这种传统的采用纯电路的方式实现的间歇功能,其电路原理为用RC电路来进行时间延迟,如果需要多个间歇档位则调节不同档位的R值即可。
?4 Pin电机。4Pin电机的控制需要软件参与,与5Pin电机的相同点为二者均有复位盘,不同点为复位盘的功能有所不同。5Pin电机中复位盘的功能如上述举例中实现Pin3和Pin2&5的连通情况,而4Pin电机则相对简单,仅实现了上述举例中的Pin3和Pin5的连通情况,即到达复位区间时,Pin3和5相通,不在此区间时不通。简单说来便是4 Pin电机就是一个高速、一个低速、一个电源、一个复位输出口。这种情况下该复位输出口将复位信号输出给控制模块,控制模块收到此信号后便认为雨刮抵达复位区间,进行断电处理。需注意的是该控制对实时性要求较高,采样延时不能太久;考虑到某些厂家推荐的控制策略,如博世推荐对其电机到达复位区间后延时30ms断电,这种情况下需采用中断口采样或极快的采样策略(如2.5ms、5ms等)。不过对于某些厂家如法雷奥等,他们根本不会有任何推荐(Why?),就靠控制模块的设计者自己去蒙吧。
上面这段理解上如果有困难,那便可以各拆解一个电机看看和测试下、各找1个车型的系统电路理解一番;下面继续功能方面的讲述。
功能升级
雨量感应。目前很多车都有自动雨刮,即相对入门级的车来说增加了一个Auto档,且在此档时Int档所对应的各个细节档位均可对应成不同的灵敏度档位。显见的是该功能必须了解当前的雨量大小,即需要增加一个雨量传感器。当前业界该传感器一般均带LIN通讯。
车速感应。自动雨刮也可同时将车速考虑进来,下雨时,理性用户最想要的是既有干净的风窗玻璃以有良好的视野、同时又不会有哪怕是多一次的额外刮刷,而为达到这个目的,不同车速下同样降雨量所需要的刮刷速率应有所差异,故理论上应将车速纳入考虑范围。
技术升级
从5Pin雨刮转成4Pin雨刮,其实是一些大的雨刮厂所推的方案,但不知道整车厂有何大的收益。表现上看省掉了一个用于复位的导线,且线路并不短,故成本上节约了一些,但同时也增加了控制模块的负担(因为需要软件实现),不过可能考虑到车身控制模块本身就是一集大成者,多一个这样的控制功能也不会增加多少成本,故此种方式便大行其道。
如果说这种转换可以理解,那接下来进一步发展:将电机做成带LIN的,这种方式确实又省了一根导线,但LIN模块的成本及雨刮电机供应商所要求的“附件值”其实只成为OEM的负担。故这种方式一般用于成本不是很敏感的场合,技术上而言采用LIN只是功能更多了,如诊断内容更多。
特殊功能
有一些实用的功能,当前的设计上有,但实际上并无很多附加值、客户也不一定知道,此处仅供参考。
?维修或清洁停位。有时候玻璃上掉了落叶或其他东西后被刮片夹住了,由于开关在OFF时刮片在风窗玻璃下部,所以可能刮臂无法直接抬起来(有些车型会被前舱盖钣金挡住),这时车主想抬起来清洁就不方便;或者在用户想清洗刮片下面的部位时也不方便。所以设计了一个简单的触发动作,让雨刮特意刮到玻璃的中间后立即停止,以方便用户做清洁或维修工作。

洗车自动刮刷中止。即在洗车过程中,如果雨刮开关处于自动刮刷档,也不进行刷刮。
双Park位置雨刮。某些雨刮具有2个Park位置,完全停止时将雨刮停到一个很低的位置以期美观;而在刮起来后的刮刷过程中,每次只会刮到一个略高一点的”Park“位置,到达此位置后便立即往反方向刮刷,这样既提升了刮刷效率又使得设计更加美观。由于这种情况的控制更加麻烦, 此种设计并非入门车的配置。
喷水时长次数感应。在给风窗玻璃喷水时,一般的设计是如果当前一直喷水则一起刮雨刮(如果有软件控制的话Stuck检测及喷水时间是应考虑的),如果立即停止喷水则再持续刮个一两次。但精细的设计是根据喷水时长及喷水开关释放时当前刮片在风档玻璃中的位置来决定松手后到底应如何刮刷,是刮完本次就停止还是继续刮一次或是两次或更多。看似简单的功能却需考虑较多细节,相信很多车型不会做到这么细。
联动功能。如启动刮水时提升发电机电压,再如刮起来后自动开启前雾灯,又如让雨刮洗涤和前灯洗涤联动。各种应用并无挑战,只消稍许修改数据库。
技术杂谈
下述几条或许对系统设计者有所益处。
重要的法规。有一要求是MCU失效时要求开关处于Hi档时雨刮仍能以低速刮刷,故此处需进行Limphome设计。对于复杂的雨刮系统,如功能控制中心为BCM,前雨刮分主电机和副电机,主电机与BCM采用LIN通讯,副电机和主电机间其他通讯(副电机可能不再有MCU了);仍需可实现“各模块中的MCU”全失效时,如果控制开关在Hi档,雨刮仍可以低速运转,所以备份线的接法有所讲究。
失效策略。尤指BCM与雨刮电机间采用通讯的方式进行控制时,各种情况下的失效及恢复策略往往容易忽略,有时设计仅仅只考虑失效了如何处理,而忘记考虑失效了恢复后如何处理。而在双电机式的设计时情况又更多了,建议列表一一分析。
系统成本。在一些传统的系统电路中,某些类型需至少2个继电器来实现系统功能,其实那种设计是有可能省掉一个继电器的,但如何节省需仔细研究。
其他。如堵转、冰冻检测及处理,雨量传感器、车速异常等自不必多言。一些复位不准、因电控引起的抖动等的原因可以千奇百怪,详细分析一番便迎刃而解。
完工后回头看,确实差强人意,但也算做完一件事、达成一个短期目标,2015。
说来对雨刮的感情还是比较深的,刚开始工作就有接触,即便后来有些间断,然直至目前仍偶有联系,只不过已渐次变少乃至没有,所以这关系是脆弱的。原想及不久后可能不再涉足,便想去总结一下;而提笔却又满心惶恐,生怕将熟悉的事物写出满满的陌生来,就如原本熟识的朋友几经交流却突变陌路,损失不可估量。反过来想这毕竟非人,凡计划中的事尽晚不如尽早,即起意、便着手。
前雨刮的介绍准备挑战一下功能、原理、设计同步开展的思路,会有一些混乱,但尽量避免。
虽然国家只有推荐标准,但我所见的前雨刮电机都是2个档位,即高速档和低速档。两个档位的刮刷速率分别在60~65rpm、40~45rpm(额定负载下)。
入门级功能
实车上往往至少会有高速(Hi)、低速(Lo)、间歇(Int)三种选择,而间歇档又可分为多个小档位,每个档位的间歇时间又是不同的(如1、3、5、7秒或2、4、6、8秒等)。加上OFF档(停止不动)和MIST档(喷洗涤液时雨刮一块动),就可有五个大的档位。这是一般车型的入门配置。对雨刮电机来说,它相对普通的永磁直流电机的差异在于有三个电刷,其中一个接地、一个高速电、一个低速电;而对于所有档位中,仅高速档是对电机的“高速电”供电的,其他任意档位均是对“低速电”碳刷供电,下文中要提到的功能也如此。
技术原理简介
对于系统的设计者而言,入门时需了解的是雨刮电机的类型、电机复位原理、系统电路如何搭配以使电机正确复位(复位的定义:当用户在非OFF档将雨刮开关打至OFF时,雨刮应自动刮到风窗玻璃下侧然后停止,而非立即断电停在玻璃中央;该位置其实为一个区间,该区间对应到电机内容为一个约30~40度的角度,此范围在下文中我们称作“复位区间”)。电机类型可分为4pin与5pin两种,后者的复位可通过外部电路直接实现,前者的复位必须通过模块控制来实现。
5PIN电机。下图为某5pin电机的典型控制电路示意(该图来自网络,看绘图风格应属BYD)。它的复位原理简述为:Pin 2&5为常电和地、Pin 1&4分别是高低速供电、Pin 3为复位专用,其原理为如在非复位区间断电,则Pin 3保持与Pin 2导通直到电机抵达复位区间(此时刮片到了风窗玻璃下部),到达复位区间后,Pin 3便不再和Pin 2导通,而与Pin 5导通,让电机进行能耗制动。对于下图中的内容由于电机内部的示意省略了且Wiper Relay也是黑盒故可能不好理解,建议参考后面的图来理解。

?4 Pin电机。4Pin电机的控制需要软件参与,与5Pin电机的相同点为二者均有复位盘,不同点为复位盘的功能有所不同。5Pin电机中复位盘的功能如上述举例中实现Pin3和Pin2&5的连通情况,而4Pin电机则相对简单,仅实现了上述举例中的Pin3和Pin5的连通情况,即到达复位区间时,Pin3和5相通,不在此区间时不通。简单说来便是4 Pin电机就是一个高速、一个低速、一个电源、一个复位输出口。这种情况下该复位输出口将复位信号输出给控制模块,控制模块收到此信号后便认为雨刮抵达复位区间,进行断电处理。需注意的是该控制对实时性要求较高,采样延时不能太久;考虑到某些厂家推荐的控制策略,如博世推荐对其电机到达复位区间后延时30ms断电,这种情况下需采用中断口采样或极快的采样策略(如2.5ms、5ms等)。不过对于某些厂家如法雷奥等,他们根本不会有任何推荐(Why?),就靠控制模块的设计者自己去蒙吧。
上面这段理解上如果有困难,那便可以各拆解一个电机看看和测试下、各找1个车型的系统电路理解一番;下面继续功能方面的讲述。
功能升级
雨量感应。目前很多车都有自动雨刮,即相对入门级的车来说增加了一个Auto档,且在此档时Int档所对应的各个细节档位均可对应成不同的灵敏度档位。显见的是该功能必须了解当前的雨量大小,即需要增加一个雨量传感器。当前业界该传感器一般均带LIN通讯。
车速感应。自动雨刮也可同时将车速考虑进来,下雨时,理性用户最想要的是既有干净的风窗玻璃以有良好的视野、同时又不会有哪怕是多一次的额外刮刷,而为达到这个目的,不同车速下同样降雨量所需要的刮刷速率应有所差异,故理论上应将车速纳入考虑范围。
技术升级
从5Pin雨刮转成4Pin雨刮,其实是一些大的雨刮厂所推的方案,但不知道整车厂有何大的收益。表现上看省掉了一个用于复位的导线,且线路并不短,故成本上节约了一些,但同时也增加了控制模块的负担(因为需要软件实现),不过可能考虑到车身控制模块本身就是一集大成者,多一个这样的控制功能也不会增加多少成本,故此种方式便大行其道。
如果说这种转换可以理解,那接下来进一步发展:将电机做成带LIN的,这种方式确实又省了一根导线,但LIN模块的成本及雨刮电机供应商所要求的“附件值”其实只成为OEM的负担。故这种方式一般用于成本不是很敏感的场合,技术上而言采用LIN只是功能更多了,如诊断内容更多。
特殊功能
有一些实用的功能,当前的设计上有,但实际上并无很多附加值、客户也不一定知道,此处仅供参考。
?维修或清洁停位。有时候玻璃上掉了落叶或其他东西后被刮片夹住了,由于开关在OFF时刮片在风窗玻璃下部,所以可能刮臂无法直接抬起来(有些车型会被前舱盖钣金挡住),这时车主想抬起来清洁就不方便;或者在用户想清洗刮片下面的部位时也不方便。所以设计了一个简单的触发动作,让雨刮特意刮到玻璃的中间后立即停止,以方便用户做清洁或维修工作。

双Park位置雨刮。某些雨刮具有2个Park位置,完全停止时将雨刮停到一个很低的位置以期美观;而在刮起来后的刮刷过程中,每次只会刮到一个略高一点的”Park“位置,到达此位置后便立即往反方向刮刷,这样既提升了刮刷效率又使得设计更加美观。由于这种情况的控制更加麻烦, 此种设计并非入门车的配置。
喷水时长次数感应。在给风窗玻璃喷水时,一般的设计是如果当前一直喷水则一起刮雨刮(如果有软件控制的话Stuck检测及喷水时间是应考虑的),如果立即停止喷水则再持续刮个一两次。但精细的设计是根据喷水时长及喷水开关释放时当前刮片在风档玻璃中的位置来决定松手后到底应如何刮刷,是刮完本次就停止还是继续刮一次或是两次或更多。看似简单的功能却需考虑较多细节,相信很多车型不会做到这么细。
联动功能。如启动刮水时提升发电机电压,再如刮起来后自动开启前雾灯,又如让雨刮洗涤和前灯洗涤联动。各种应用并无挑战,只消稍许修改数据库。
技术杂谈
下述几条或许对系统设计者有所益处。
重要的法规。有一要求是MCU失效时要求开关处于Hi档时雨刮仍能以低速刮刷,故此处需进行Limphome设计。对于复杂的雨刮系统,如功能控制中心为BCM,前雨刮分主电机和副电机,主电机与BCM采用LIN通讯,副电机和主电机间其他通讯(副电机可能不再有MCU了);仍需可实现“各模块中的MCU”全失效时,如果控制开关在Hi档,雨刮仍可以低速运转,所以备份线的接法有所讲究。
失效策略。尤指BCM与雨刮电机间采用通讯的方式进行控制时,各种情况下的失效及恢复策略往往容易忽略,有时设计仅仅只考虑失效了如何处理,而忘记考虑失效了恢复后如何处理。而在双电机式的设计时情况又更多了,建议列表一一分析。
系统成本。在一些传统的系统电路中,某些类型需至少2个继电器来实现系统功能,其实那种设计是有可能省掉一个继电器的,但如何节省需仔细研究。
其他。如堵转、冰冻检测及处理,雨量传感器、车速异常等自不必多言。一些复位不准、因电控引起的抖动等的原因可以千奇百怪,详细分析一番便迎刃而解。
完工后回头看,确实差强人意,但也算做完一件事、达成一个短期目标,2015。
